Единица измерения
шт
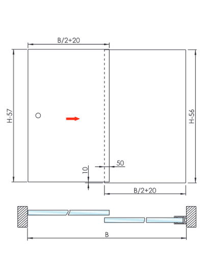
Подходит только для стекла 8 мм толщиной
Минимальный размер створки 650 мм (для доводчика)
Возможна установка с креплением к стеклу - для этого приобретается крепление Trem-7813
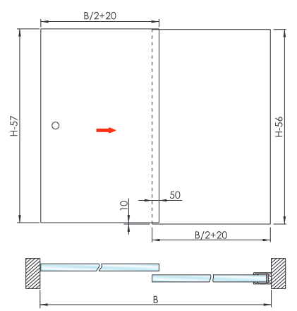
Подходит только для стекла 8 мм толщиной
Минимальный размер створки 650 мм (для доводчика)
Возможна установка с креплением к стеклу - для этого приобретается крепление Trem-7813
-
Документы
Схема монтажа лист 4 из 4.jpg480.6 кб, 24 сентября в 13:17Схема монтажа лист 3 из 4.jpg276.1 кб, 24 сентября в 13:17Схема монтажа лист 2 из 4.jpg327.2 кб, 24 сентября в 13:17Схема монтажа лист 1 из 4.jpg491.6 кб, 24 сентября в 13:16 -
Характеристики
Единица измеренияшт -
Комментарии 0
Добавить комментарий
Схема монтажа лист 4 из 4.jpg
480.6 кб, 24 сентября в 13:17
Схема монтажа лист 3 из 4.jpg
276.1 кб, 24 сентября в 13:17
Схема монтажа лист 2 из 4.jpg
327.2 кб, 24 сентября в 13:17
Схема монтажа лист 1 из 4.jpg
491.6 кб, 24 сентября в 13:16
Единица измерения
шт